大津市中央2丁目の店舗 1-4階
JR大津駅より徒歩10分、4階建てテナントビル一棟貸し。
- 賃料/坪単価
- 66万円 /
0.59万円
- 坪数/面積
- 111.38坪 /
368.22㎡
- 所在階
- 1-4階
- 管理費・共益費
- 66,000円
- 保証金
- 5ヶ月
- 礼金
- 0ヶ月
ポイント・特徴
物件概要
【店舗】 物件番号:97511682 情報更新日:2026年01月05日 次回更新予定日:2026年01月19日| 所在地 | 滋賀県大津市中央2丁目 | ||
|---|---|---|---|
| 交通 | |||
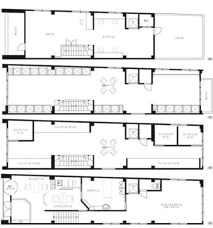
| 坪数(面積) | 111.38坪(368.22㎡) | ||
| 賃料/坪単価 | 66万円/0.59万円 | 管理費・共益費 | 66,000円 |
| 敷金/礼金/保証金 | 0ヶ月/0ヶ月/5ヶ月 | 償却/敷引 | -/- |
| 更新料 | 1ヶ月 | 権利金/雑費 | -/- |
| 造作譲渡金 | - | 駐車場/月額料金 | -/- |
| 保険加入/料金 | 有/- | 保険名/保険期間 | -/- |
| 保証人代行義務 | 必加入 | 保証会社 | 日本セーフティー |
| 保証会社詳細 | - | 向き | - |
| 築年月(築年数) | 1978年 9月 (築47年) | 契約期間 | 3年 |
| 種別/構造 | 店舗/鉄骨造 | 用途地域 | 商業 |
| 部屋/所在階/階建 | -/1-4階/4階建 | 総戸数 | - |
| 現況/引渡時期 | 居住中/相談 | 取引態様 | 仲介 |
| 物件番号 | 97511682 | 取引条件の有効期限 | 2026年01月19日 |
| 設備条件 |
|
||
| 備考 |
1階:美容室、4階:撮影スタジオ 保証金返還率:別途定め有り ※表示金額:全て税込 ※仲介手数料:賃料1ヶ月分 |
||
| 取扱会社 |
|
||
※地図上に表示される物件の位置は付近住所に所在することを表すものであり、実際の物件所在地とは異なる場合がございます。









