大津市浜大津4丁目の店舗事務所 4階
大津市浜大津の生活道路に面した店舗事務所。4階部分・約45坪。事務所や各種教室に適しています。
- 賃料/坪単価
- 25万3,000円 /
0.55万円
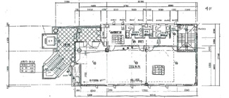
- 坪数/面積
- 45.67坪 /
151.00㎡
- 所在階
- 4階
- 管理費・共益費
- -
- 敷金
- 3ヶ月
- 礼金
- 1ヶ月
ポイント・特徴
物件概要
【店舗事務所】 物件番号:101467452 情報更新日:2026年03月10日 次回更新予定日:2026年03月24日| 所在地 | 滋賀県大津市浜大津4丁目 | ||
|---|---|---|---|
| 交通 | |||
| 坪数(面積) | 45.67坪(151.00㎡) | ||
| 賃料/坪単価 | 25.3万円/0.55万円 | 管理費・共益費 | - |
| 敷金/礼金/保証金 | 3ヶ月/1ヶ月/- | 償却/敷引 | -/- |
| 更新料 | - | 権利金/雑費 | -/- |
| 造作譲渡金 | - | 駐車場/月額料金 | 無/- |
| 保険加入/料金 | 有/- | 保険名/保険期間 | -/- |
| 保証人代行義務 | 必加入 | 保証会社 | 日本セーフティー |
| 保証会社詳細 | - | 向き | - |
| 築年月(築年数) | 1995年 12月 (築30年) | 契約期間 | 3年 |
| 種別/構造 | 店舗事務所/鉄骨造 | 用途地域 | 商業 |
| 部屋/所在階/階建 | -/4階/4階建 | 総戸数 | - |
| 現況/引渡時期 | 空家/相談 | 取引態様 | 仲介 |
| 物件番号 | 101467452 | 取引条件の有効期限 | 2026年03月24日 |
| 設備条件 |
|
||
| 備考 |
※現状有姿での引き渡し ※上下水道料金:月額6,000円(定額) ※ゴミ処理料:月額2,200(税込) ※表示金額:全て税込 ※仲介手数料:賃料1ヶ月分 |
||
| 取扱会社 |
|
||
※地図上に表示される物件の位置は付近住所に所在することを表すものであり、実際の物件所在地とは異なる場合がございます。









