大津市浜大津1丁目の店舗一部 2階
京阪・びわ湖浜大津駅より徒歩1分、JR大津駅より徒歩15分、新築のテナントビル、2階部分・約90坪。飲食店が可能な店舗です!
- 賃料/坪単価
- 121万4,400円 /
1.35万円
- 坪数/面積
- 89.85坪 /
297.03㎡
- 所在階
- 2階
- 管理費・共益費
- -
- 敷金
- 5ヶ月
- 礼金
- 3ヶ月
ポイント・特徴
物件概要
【店舗一部】 物件番号:94517526 情報更新日:2025年12月11日 次回更新予定日:2025年12月25日| 所在地 | 滋賀県大津市浜大津1丁目 | ||
|---|---|---|---|
| 交通 | |||
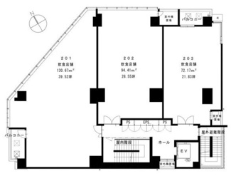
| 坪数(面積) | 89.85坪(297.03㎡) | ||
| 賃料/坪単価 | 121.44万円/1.35万円 | 管理費・共益費 | - |
| 敷金/礼金/保証金 | 5ヶ月/3ヶ月/- | 償却/敷引 | -/- |
| 更新料 | - | 権利金/雑費 | -/- |
| 造作譲渡金 | - | 駐車場/月額料金 | -/- |
| 保険加入/料金 | 有/- | 保険名/保険期間 | -/- |
| 保証人代行義務 | 必加入 | 保証会社 | 日本賃貸保証 |
| 保証会社詳細 | - | 向き | - |
| 築年月(築年数) | 2026年 2月 (予定) | 契約期間 | 定期借家 10年 |
| 種別/構造 | 店舗一部/鉄骨鉄筋コンクリート | 用途地域 | 商業 |
| 部屋/所在階/階建 | -/2階/8階建 地下1階 | 総戸数 | - |
| 現況/引渡時期 | 空家/2026年03月上旬 | 取引態様 | 仲介 |
| 物件番号 | 94517526 | 取引条件の有効期限 | 2025年12月25日 |
| 設備条件 |
|
||
| 備考 |
バルコニー面積:17.37㎡ 上場法人で保証会社の契約が出来ない場合は、敷金8ヶ月(3ヵ月積み増し)となります。 短期解約違約金(賃料の1ヶ月分)がかかります。 ※現在工事中のため、面積に多少の変化が生じる可能性があります。 ※表示金額:全て税込 ※仲介手数料:賃料1ヶ月分 |
||
| 取扱会社 |
|
||
※地図上に表示される物件の位置は付近住所に所在することを表すものであり、実際の物件所在地とは異なる場合がございます。









