大津市本堅田5丁目の店舗事務所 3階
JR湖西線・堅田駅より徒歩8分 スポーツクラブの中にある貸店舗
- 賃料/坪単価
- 9万1,344円 /
0.66万円
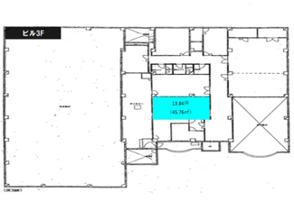
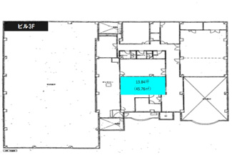
- 坪数/面積
- 13.84坪 /
45.76㎡
- 所在階
- 3階
- 管理費・共益費
- 41,104円
- 保証金
- 10ヶ月
- 礼金
- 0ヶ月
ポイント・特徴
物件概要
【店舗事務所】 物件番号:48556329 情報更新日:2026年03月10日 次回更新予定日:2026年03月24日| 所在地 | 滋賀県大津市本堅田5丁目 | ||
|---|---|---|---|
| 交通 | |||
| 坪数(面積) | 13.84坪(45.76㎡) | ||
| 賃料/坪単価 | 9.1344万円/0.66万円 | 管理費・共益費 | 41,104円 |
| 敷金/礼金/保証金 | 0ヶ月/0ヶ月/10ヶ月 | 償却/敷引 | -/- |
| 更新料 | - | 権利金/雑費 | -/- |
| 造作譲渡金 | - | 駐車場/月額料金 | 空有/- |
| 保険加入/料金 | 有/- | 保険名/保険期間 | -/- |
| 保証人代行義務 | 必加入 | 保証会社 | - |
| 保証会社詳細 | - | 向き | - |
| 築年月(築年数) | 1987年 1月 (築39年) | 契約期間 | 3年 |
| 種別/構造 | 店舗事務所/鉄筋コンクリート | 用途地域 | 第一種住居/商業 |
| 部屋/所在階/階建 | -/3階/3階建 | 総戸数 | - |
| 現況/引渡時期 | 空家/相談 | 取引態様 | 一般媒介 |
| 物件番号 | 48556329 | 取引条件の有効期限 | 2026年03月24日 |
| 設備条件 |
|
||
| 備考 | ※表示価格:全て税込 | ||
| 取扱会社 |
|
||
※地図上に表示される物件の位置は付近住所に所在することを表すものであり、実際の物件所在地とは異なる場合がございます。









