大津市今堅田2丁目の店舗一部 2階
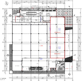
滋賀初出店、大津市堅田エリアにオープン予定のスーパーの2階部分・約93坪のテナント。大通り沿いに面しており、視認性も良好、来客用駐車場も多数あり。業種はお気軽にお問い合わせください。
- 賃料/坪単価
- 92万700円 /
0.98万円
- 坪数/面積
- 93.84坪 /
310.24㎡
- 所在階
- 2階
- 管理費・共益費
- -
- 敷金
- 6ヶ月
- 礼金
- 1ヶ月
ポイント・特徴
物件概要
【店舗一部】 物件番号:101232094 情報更新日:2026年02月03日 次回更新予定日:2026年02月17日| 所在地 | 滋賀県大津市今堅田2丁目 | ||
|---|---|---|---|
| 交通 | |||
| 坪数(面積) | 93.84坪(310.24㎡) | ||
| 賃料/坪単価 | 92.07万円/0.98万円 | 管理費・共益費 | - |
| 敷金/礼金/保証金 | 6ヶ月/1ヶ月/- | 償却/敷引 | -/- |
| 更新料 | - | 権利金/雑費 | -/- |
| 造作譲渡金 | - | 駐車場/月額料金 | 空有/0円 |
| 保険加入/料金 | 有/- | 保険名/保険期間 | -/- |
| 保証人代行義務 | 必加入 | 保証会社 | - |
| 保証会社詳細 | - | 向き | - |
| 築年月(築年数) | 2026年 10月 (予定) | 契約期間 | 定期借家 10年 |
| 種別/構造 | 店舗一部/鉄骨造 | 用途地域 | 商業 |
| 部屋/所在階/階建 | -/2階/2階建 | 総戸数 | - |
| 現況/引渡時期 | 未完成/2026年12月上旬 | 取引態様 | 一般媒介 |
| 物件番号 | 101232094 | 取引条件の有効期限 | 2026年02月17日 |
| 設備条件 |
|
||
| 備考 |
敷金返還率:5年未満 0%、10年未満 50%、10年以上 100% 看板掲出料:月額55,000円 共益費:賃料に含む 来客用駐車場利用料:賃料に含む ガードマン費用・機械警備費:賃料に含む 営業時間:9:00~22:00内にて ※表示金額:全て税込 ※仲介手数料:賃料1ヶ月分 |
||
| 取扱会社 |
|
||
※地図上に表示される物件の位置は付近住所に所在することを表すものであり、実際の物件所在地とは異なる場合がございます。









