栗東市下鈎の事務所 5階
JR栗東駅より徒歩13分、オフィスビルの5階部分・約32坪。
- 賃料/坪単価
- 35万5,300円 /
1.1万円
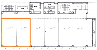
- 坪数/面積
- 32.30坪 /
106.80㎡
- 所在階
- 5階
- 管理費・共益費
- 88,825円
- 敷金
- 12ヶ月
- 礼金
- 0ヶ月
ポイント・特徴
物件概要
【事務所】 物件番号:72961413 情報更新日:2026年01月08日 次回更新予定日:2026年01月22日| 所在地 | 滋賀県栗東市下鈎 | ||
|---|---|---|---|
| 交通 | |||
| 賃料/坪単価 | 35.53万円/1.1万円 | 坪数(面積) | 32.30坪(106.80㎡) |
| 管理費・共益費 | 88,825円 | 敷金/礼金/保証金 | 12ヶ月/0ヶ月/0ヶ月 |
| 償却/敷引 | -/- | 更新料 | - |
| 権利金/雑費 | -/- | ||
| 造作譲渡金 | - | 駐車場/月額料金 | 空有/7,700円 (税込) |
| 保険加入/料金 | 有/- | 保険名/保険期間 | -/- |
| 保証人代行義務 | 必加入 | 保証会社 | - |
| 保証会社詳細 | - | 向き | - |
| 築年月(築年数) | 1992年 3月 (築33年) | 契約期間 | 3年 |
| 種別/構造 | 事務所/鉄筋コンクリート | 部屋/所在階/階建 | -/5階/7階建 |
| 総戸数 | - | 現況/引渡時期 | 空家/相談 |
| 取引態様 | 仲介 | 用途地域 | 工業 |
| 物件番号 | 72961413 | 取引条件の有効期限 | 2026年01月22日 |
| 設備条件 |
|
||
| 備考 |
敷金返還率:7年以上全額、7年未満90%、5年未満80% 工事業者:指定有(要相談) 清掃業者:別途契約※指定有 ※表示金額:すべて税込 |
||
| 条件(その他) | 広告塔使用料:1万1,000円(月額) | ||
| 取扱会社 |
|
||
※地図上に表示される物件の位置は付近住所に所在することを表すものであり、実際の物件所在地とは異なる場合がございます。









