近江八幡市鷹飼町の店舗事務所 1階
JR近江八幡駅より徒歩2分 希少駅前飲食可能物件 スケルトン
- 賃料/坪単価
- 78万9,800円 /
1.32万円
- 坪数/面積
- 59.83坪 /
197.80㎡
- 所在階
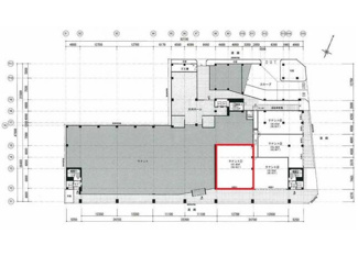
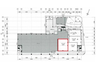
- 1階
- 管理費・共益費
- -
- 保証金
- 6ヶ月
- 礼金
- 0ヶ月
ポイント・特徴
物件概要
【店舗事務所】 物件番号:47611308 情報更新日:2026年03月10日 次回更新予定日:2026年03月24日| 所在地 | 滋賀県近江八幡市鷹飼町 | ||
|---|---|---|---|
| 交通 | |||
| 坪数(面積) | 59.83坪(197.80㎡) | ||
| 賃料/坪単価 | 78.98万円/1.32万円 | 管理費・共益費 | - |
| 敷金/礼金/保証金 | 0ヶ月/0ヶ月/6ヶ月 | 償却/敷引 | -/- |
| 更新料 | 0ヶ月 | 権利金/雑費 | -/- |
| 造作譲渡金 | - | 駐車場/月額料金 | 空有/27,500円 (税込) 駐車場:従業員の利用不可 |
| 保険加入/料金 | 有/- | 保険名/保険期間 | 火災保険/- |
| 保証人代行義務 | 必加入 | 保証会社 | - |
| 保証会社詳細 | - | 向き | - |
| 築年月(築年数) | 1996年 11月 (築29年) | 契約期間 | 3年 |
| 種別/構造 | 店舗事務所/鉄骨造 | 用途地域 | 商業 |
| 部屋/所在階/階建 | -/1階/7階建 | 総戸数 | - |
| 現況/引渡時期 | 空家/相談 | 取引態様 | 仲介 |
| 物件番号 | 47611308 | 取引条件の有効期限 | 2026年03月24日 |
| 設備条件 |
|
||
| 備考 |
保証金返還率:3年未満50% 6年未満70% 6年以上90% ※表示金額:全て税込 |
||
| 条件(その他) | 看板利用料:1万1,000円(月額) | ||
| 取扱会社 |
|
||
※地図上に表示される物件の位置は付近住所に所在することを表すものであり、実際の物件所在地とは異なる場合がございます。









