守山市播磨田町の店舗
賃料
-
種別
店舗
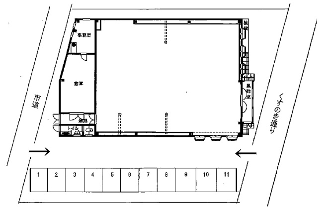
面積
391.60㎡
坪数
118.45坪
住所
滋賀県守山市播磨田町
交通
守山駅
徒歩25分
外観
間取り
内装