湖南市中央2丁目の事務所 2階
JR草津線・甲西駅より徒歩6分。2階部分・約18坪の事務所。
- 賃料/坪単価
- 5万5,000円 /
0.3万円
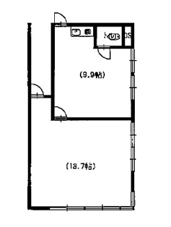
- 坪数/面積
- 18.45坪 /
61.00㎡
- 所在階
- 2階
- 管理費・共益費
- 5,500円
- 敷金
- 16.5万円
- 礼金
- 0ヶ月
ポイント・特徴
物件概要
【事務所】 物件番号:66924372 情報更新日:2026年03月10日 次回更新予定日:2026年03月24日| 所在地 | 滋賀県湖南市中央2丁目 | ||
|---|---|---|---|
| 交通 | |||
| 賃料/坪単価 | 5.5万円/0.3万円 | 坪数(面積) | 18.45坪(61.00㎡) |
| 管理費・共益費 | 5,500円 | 敷金/礼金/保証金 | 16.5万円/0ヶ月/0ヶ月 |
| 償却/敷引 | -/- | 更新料 | 0ヶ月 |
| 権利金/雑費 | -/- | ||
| 造作譲渡金 | - | 駐車場/月額料金 | 空有(1台)/4,400円 (税込) |
| 保険加入/料金 | 有/- | 保険名/保険期間 | 火災保険/- |
| 保証人代行義務 | 必加入 | 保証会社 | - |
| 保証会社詳細 | - | 向き | - |
| 築年月(築年数) | 1986年 5月 (築39年) | 契約期間 | 3年 |
| 種別/構造 | 事務所/鉄骨造 | 部屋/所在階/階建 | -/2階/3階建 |
| 総戸数 | - | 現況/引渡時期 | -/相談 |
| 取引態様 | 仲介 | 用途地域 | 商業 |
| 物件番号 | 66924372 | 取引条件の有効期限 | 2026年03月24日 |
| 設備条件 |
|
||
| 備考 |
1年以内の解約時:中途解約規約金 賃料1ヶ月分発生 ※表示金額:全て税込 |
||
| 条件(その他) | 水道預かり:5,000円(月額) | ||
| 取扱会社 |
|
||
※地図上に表示される物件の位置は付近住所に所在することを表すものであり、実際の物件所在地とは異なる場合がございます。









