野洲市冨波甲の店舗一部 2階
県道2号線沿い、2階部分・約17坪の事務所。オフィスや各種スクールに適します。
- 賃料/坪単価
- 5万5,000円 /
0.31万円
- 坪数/面積
- 17.96坪 /
59.40㎡
- 所在階
- 2階
- 管理費・共益費
- -
- 敷金
- 5万円
- 礼金
- 11万円
ポイント・特徴
物件概要
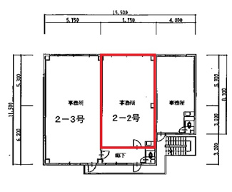
【店舗一部】 物件番号:69814761 情報更新日:2025年11月04日 次回更新予定日:2025年11月18日| 所在地 | 滋賀県野洲市冨波甲 | ||
|---|---|---|---|
| 交通 | |||
| 坪数(面積) | 17.96坪(59.40㎡) | ||
| 賃料/坪単価 | 5.5万円/0.31万円 | 管理費・共益費 | - |
| 敷金/礼金/保証金 | 5万円/11万円/- | 償却/敷引 | -/- |
| 更新料 | 0ヶ月 | 権利金/雑費 | -/- |
| 造作譲渡金 | - | 駐車場/月額料金 | 空有(1台)/4,400円 (税込) |
| 保険加入/料金 | 有/- | 保険名/保険期間 | -/- |
| 保証人代行義務 | 必加入 | 保証会社 | - |
| 保証会社詳細 | - | 向き | - |
| 築年月(築年数) | 1990年 1月 (築35年) | 契約期間 | 3年 |
| 種別/構造 | 店舗一部/鉄骨造 | 用途地域 | 第二種中高層住居専用 |
| 部屋/所在階/階建 | -/2階/2階建 | 総戸数 | - |
| 現況/引渡時期 | 空家/相談 | 取引態様 | 仲介 |
| 物件番号 | 69814761 | 取引条件の有効期限 | 2025年11月18日 |
| 設備条件 |
|
||
| 備考 |
※表示金額:全て税込 ※仲介手数料:賃料1ヶ月分 |
||
| 条件(その他) | 更新事務手数料:2万2,000円 | ||
| 取扱会社 |
|
||
※地図上に表示される物件の位置は付近住所に所在することを表すものであり、実際の物件所在地とは異なる場合がございます。









