甲賀市水口町京町の店舗一部 1階
近江鉄道・水口石橋駅より徒歩10分 物販・事務所として適します。広さ約20坪。内装綺麗です。
- 賃料/坪単価
- 5万円 /
0.43万円
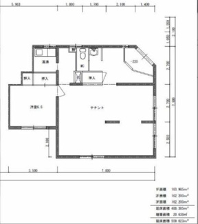
- 坪数/面積
- 19.92坪 /
65.86㎡
- 所在階
- 1階
- 管理費・共益費
- 3,000円
- 敷金
- 1ヶ月
- 礼金
- 1ヶ月
ポイント・特徴
物件概要
【店舗一部】 物件番号:42800487 情報更新日:2026年02月10日 次回更新予定日:2026年02月24日| 所在地 | 滋賀県甲賀市水口町京町 | ||
|---|---|---|---|
| 交通 | |||
| 坪数(面積) | 19.92坪(65.86㎡) | ||
| 賃料/坪単価 | 5万円/0.43万円 | 管理費・共益費 | 3,000円 |
| 敷金/礼金/保証金 | 1ヶ月/1ヶ月/- | 償却/敷引 | -/- |
| 更新料 | - | 権利金/雑費 | -/- |
| 造作譲渡金 | - | 駐車場/月額料金 | 無/- |
| 保険加入/料金 | 有/- | 保険名/保険期間 | 火災保険/- |
| 保証人代行義務 | 必加入 | 保証会社 | - |
| 保証会社詳細 | - | 向き | - |
| 築年月(築年数) | 1990年 6月 (築35年) | 契約期間 | 2年 |
| 種別/構造 | 店舗一部/鉄筋コンクリート | 用途地域 | 第一種住居 |
| 部屋/所在階/階建 | -/1階/3階建 | 総戸数 | - |
| 現況/引渡時期 | 空家/即時 | 取引態様 | 仲介 |
| 物件番号 | 42800487 | 取引条件の有効期限 | 2026年02月24日 |
| 設備条件 |
|
||
| 備考 |
ハウスクリーニング代(退去時):27,500円 ※表示金額:全て税込 |
||
| 条件(その他) | 更新事務手数料:1万6,500円 鍵交換費:1万6,500円 | ||
| 取扱会社 |
|
||
※地図上に表示される物件の位置は付近住所に所在することを表すものであり、実際の物件所在地とは異なる場合がございます。









