栗東市綣7丁目の店舗事務所 1階
JR栗東駅より徒歩2分、1階部分・約13坪。店舗前に駐車場2台分あり。
- 賃料/坪単価
- 15万5,000円 /
1.2万円
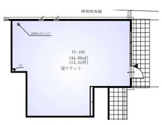
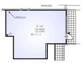
- 坪数/面積
- 13.30坪 /
44.00㎡
- 所在階
- 1階
- 管理費・共益費
- -
- 保証金
- 4ヶ月
- 礼金
- 0ヶ月
ポイント・特徴
物件概要
【店舗事務所】 物件番号:97729540 情報更新日:2026年02月10日 次回更新予定日:2026年02月24日| 所在地 | 滋賀県栗東市綣7丁目 | ||
|---|---|---|---|
| 交通 | |||
| 坪数(面積) | 13.30坪(44.00㎡) | ||
| 賃料/坪単価 | 15.5万円/1.2万円 | 管理費・共益費 | - |
| 敷金/礼金/保証金 | -/0ヶ月/4ヶ月 | 償却/敷引 | -/- |
| 更新料 | - | 権利金/雑費 | -/- |
| 造作譲渡金 | - | 駐車場/月額料金 | 空有(2台)/7,000円 (非課税) |
| 保険加入/料金 | 有/- | 保険名/保険期間 | -/- |
| 保証人代行義務 | 必加入 | 保証会社 | 全保連 |
| 保証会社詳細 | - | 向き | - |
| 築年月(築年数) | 2026年 2月 (予定) | 契約期間 | 2年 |
| 種別/構造 | 店舗事務所/木造 | 用途地域 | 近隣商業 |
| 部屋/所在階/階建 | -/1階/2階建 | 総戸数 | - |
| 現況/引渡時期 | 未完成/2026年02月下旬 | 取引態様 | 仲介 |
| 物件番号 | 97729540 | 取引条件の有効期限 | 2026年02月24日 |
| 設備条件 |
|
||
| 備考 |
※表示金額:全て税込 ※仲介手数料:賃料1ヶ月分 |
||
| 取扱会社 |
|
||
※地図上に表示される物件の位置は付近住所に所在することを表すものであり、実際の物件所在地とは異なる場合がございます。









