守山市吉身5丁目の店舗事務所 1階
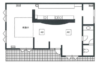
JR守山駅より徒歩15分、単独の店舗事務所・約12坪。敷地内駐車場10台分あり。
- 賃料/坪単価
- 13万2,000円 /
1.08万円
- 坪数/面積
- 12.22坪 /
40.40㎡
- 所在階
- 1階
- 管理費・共益費
- -
- 敷金
- 50万円
- 礼金
- 30万円
ポイント・特徴
物件概要
【店舗事務所】 物件番号:96999893 情報更新日:2025年11月04日 次回更新予定日:2025年11月18日| 所在地 | 滋賀県守山市吉身5丁目 | ||
|---|---|---|---|
| 交通 | |||
| 坪数(面積) | 12.22坪(40.40㎡) | ||
| 賃料/坪単価 | 13.2万円/1.08万円 | 管理費・共益費 | - |
| 敷金/礼金/保証金 | 50万円/30万円/- | 償却/敷引 | -/- |
| 更新料 | 1ヶ月(新賃料) | 権利金/雑費 | -/- |
| 造作譲渡金 | - | 駐車場/月額料金 | 有(10台)/0円 |
| 保険加入/料金 | 有/- | 保険名/保険期間 | -/- |
| 保証人代行義務 | 必加入 | 保証会社 | - |
| 保証会社詳細 | - | 向き | - |
| 築年月(築年数) | 1986年 7月 (築39年) | 契約期間 | 5年 |
| 種別/構造 | 店舗事務所/木造 | 用途地域 | 第一種住居 |
| 部屋/所在階/階建 | -/1階/1階建 | 総戸数 | - |
| 現況/引渡時期 | 空家/相談 | 取引態様 | 仲介 |
| 物件番号 | 96999893 | 取引条件の有効期限 | 2025年11月18日 |
| 設備条件 |
|
||
| 備考 |
原則としてスケルトン渡し (既存設備利用希望の場合相談可。但し、スケルトン返還) ※表示金額:全て税込 ※仲介手数料:賃料1ヶ月分 |
||
| 取扱会社 |
|
||
※地図上に表示される物件の位置は付近住所に所在することを表すものであり、実際の物件所在地とは異なる場合がございます。









