守山市守山1丁目の店舗一部 1階
JR守山駅より徒歩7分のマンション1階部分の物件。約53坪。業種はご相談下さい。
- 賃料/坪単価
- 38万5,000円 /
0.72万円
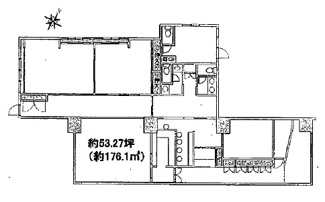
- 坪数/面積
- 53.27坪 /
176.10㎡
- 所在階
- 1階
- 管理費・共益費
- -
- 保証金
- 3ヶ月
- 礼金
- 2ヶ月
ポイント・特徴
物件概要
【店舗一部】 物件番号:93841479 情報更新日:2026年03月10日 次回更新予定日:2026年03月24日| 所在地 | 滋賀県守山市守山1丁目 | ||
|---|---|---|---|
| 交通 | |||
| 坪数(面積) | 53.27坪(176.10㎡) | ||
| 賃料/坪単価 | 38.5万円/0.72万円 | 管理費・共益費 | - |
| 敷金/礼金/保証金 | 0ヶ月/2ヶ月/3ヶ月 | 償却/敷引 | -/- |
| 更新料 | 0ヶ月 | 権利金/雑費 | -/- |
| 造作譲渡金 | - | 駐車場/月額料金 | 空有(1台)/- |
| 保険加入/料金 | 有/- | 保険名/保険期間 | -/- |
| 保証人代行義務 | 必加入 | 保証会社 | エルズサポート |
| 保証会社詳細 | - | 向き | - |
| 築年月(築年数) | 1999年 6月 (築26年) | 契約期間 | 3年 |
| 種別/構造 | 店舗一部/鉄骨鉄筋コンクリート | 用途地域 | 商業 |
| 部屋/所在階/階建 | -/1階/13階建 | 総戸数 | - |
| 現況/引渡時期 | 賃貸中/即時 | 取引態様 | 仲介 |
| 物件番号 | 93841479 | 取引条件の有効期限 | 2026年03月24日 |
| 設備条件 |
|
||
| 備考 |
※表示金額:全て税込 ※仲介手数料:賃料1ヶ月分 |
||
| 取扱会社 |
|
||
※地図上に表示される物件の位置は付近住所に所在することを表すものであり、実際の物件所在地とは異なる場合がございます。









