守山市勝部1丁目の店舗事務所 2階
JR守山駅より徒歩3分、新築テナントビル、2階部分・約17坪。
- 賃料/坪単価
- 24万4,530円 /
1.43万円
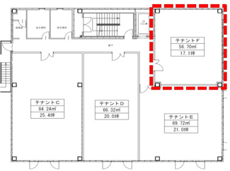
- 坪数/面積
- 17.15坪 /
56.70㎡
- 所在階
- 2階
- 管理費・共益費
- -
- 保証金
- 12ヶ月
- 礼金
- 0ヶ月
ポイント・特徴
物件概要
【店舗事務所】 物件番号:85073496 情報更新日:2026年02月10日 次回更新予定日:2026年02月24日| 所在地 | 滋賀県守山市勝部1丁目 | ||
|---|---|---|---|
| 交通 | |||
| 坪数(面積) | 17.15坪(56.70㎡) | ||
| 賃料/坪単価 | 24.453万円/1.43万円 | 管理費・共益費 | - |
| 敷金/礼金/保証金 | 0ヶ月/0ヶ月/12ヶ月 | 償却/敷引 | -/- |
| 更新料 | - | 権利金/雑費 | -/- |
| 造作譲渡金 | - | 駐車場/月額料金 | 空有/0円 共用のみ |
| 保険加入/料金 | 有/- | 保険名/保険期間 | -/- |
| 保証人代行義務 | 必加入 | 保証会社 | - |
| 保証会社詳細 | - | 向き | - |
| 築年月(築年数) | 2025年 3月 (予定) | 契約期間 | 定期借家 5年 |
| 種別/構造 | 店舗事務所/鉄骨造 | 用途地域 | 商業 |
| 部屋/所在階/階建 | -/2階/4階建 | 総戸数 | - |
| 現況/引渡時期 | 未完成/2025年03月上旬予定 | 取引態様 | 仲介 |
| 物件番号 | 85073496 | 取引条件の有効期限 | 2026年02月24日 |
| 設備条件 |
|
||
| 備考 |
※表示金額:全て税込 ※仲介手数料:賃料1ヶ月分 |
||
| 取扱会社 |
|
||
※地図上に表示される物件の位置は付近住所に所在することを表すものであり、実際の物件所在地とは異なる場合がございます。









