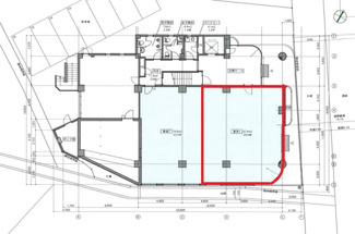
守山市守山1丁目の店舗一部 1階
JR守山駅より徒歩6分、守山銀座商店街。1階部分・約29坪の事務所。オフィスや各種教室などに適します。
- 賃料/坪単価
- 35万6,466円 /
1.38万円
- 坪数/面積
- 29.46坪 /
97.40㎡
- 所在階
- 1階
- 管理費・共益費
- 97,218円
- 保証金
- 12ヶ月
- 礼金
- 0ヶ月
ポイント・特徴
物件概要
【店舗一部】 物件番号:69536777 情報更新日:2026年02月06日 次回更新予定日:2026年02月20日| 所在地 | 滋賀県守山市守山1丁目 | ||
|---|---|---|---|
| 交通 | |||
| 坪数(面積) | 29.46坪(97.40㎡) | ||
| 賃料/坪単価 | 35.6466万円/1.38万円 | 管理費・共益費 | 97,218円 |
| 敷金/礼金/保証金 | 0ヶ月/0ヶ月/12ヶ月 | 償却/敷引 | -/- |
| 更新料 | 0ヶ月 | 権利金/雑費 | -/- |
| 造作譲渡金 | - | 駐車場/月額料金 | 空有/11,000円 (税込 12100円) |
| 保険加入/料金 | 有/- | 保険名/保険期間 | -/- |
| 保証人代行義務 | 必加入 | 保証会社 | - |
| 保証会社詳細 | - | 向き | - |
| 築年月(築年数) | 1985年 11月 (築40年) | 契約期間 | 2年 |
| 種別/構造 | 店舗一部/鉄筋コンクリート | 用途地域 | 商業 |
| 部屋/所在階/階建 | -/1階/4階建 | 総戸数 | - |
| 現況/引渡時期 | 空家/相談 | 取引態様 | 仲介 |
| 物件番号 | 69536777 | 取引条件の有効期限 | 2026年02月20日 |
| 設備条件 |
|
||
| 備考 |
保証金償却:5年未満30%、10年未満20%、10年以上0% ※表示金額:全て税込 |
||
| 条件(その他) | 更新事務手数料:2万円 | ||
| 取扱会社 |
|
||
※地図上に表示される物件の位置は付近住所に所在することを表すものであり、実際の物件所在地とは異なる場合がございます。









