守山市守山6丁目の店舗一部 1階
JR守山駅より徒歩22分、新中山道に面す、飲食店可能な店舗・約9坪。
- 賃料/坪単価
- 11万円 /
1.29万円
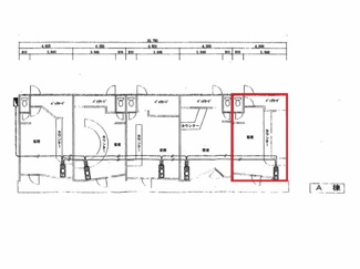
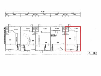
- 坪数/面積
- 8.53坪 /
28.20㎡
- 所在階
- 1階
- 管理費・共益費
- -
- 保証金
- 100万円
- 礼金
- 0ヶ月
ポイント・特徴
物件概要
【店舗一部】 物件番号:38953071 情報更新日:2026年02月10日 次回更新予定日:2026年02月24日| 所在地 | 滋賀県守山市守山6丁目 | ||
|---|---|---|---|
| 交通 | |||
| 坪数(面積) | 8.53坪(28.20㎡) | ||
| 賃料/坪単価 | 11万円/1.29万円 | 管理費・共益費 | - |
| 敷金/礼金/保証金 | 0ヶ月/0ヶ月/100万円 | 償却/敷引 | -/- |
| 更新料 | - | 権利金/雑費 | -/- |
| 造作譲渡金 | - | 駐車場/月額料金 | 空有/- |
| 保険加入/料金 | 有/- | 保険名/保険期間 | 火災保険/- |
| 保証人代行義務 | - | 保証会社 | - |
| 保証会社詳細 | - | 向き | - |
| 築年月(築年数) | 1977年 12月 (築48年) | 契約期間 | 定期借家 3年 |
| 種別/構造 | 店舗一部/木造 | 用途地域 | 第一種住居 |
| 部屋/所在階/階建 | -/1階/1階建 | 総戸数 | - |
| 現況/引渡時期 | 空家/相談 | 取引態様 | 仲介 |
| 物件番号 | 38953071 | 取引条件の有効期限 | 2026年02月24日 |
| 設備条件 |
|
||
| 備考 |
保証金返還率:3年未満50%、3年以上80% ※表示金額:全て税込 |
||
| 取扱会社 |
|
||
※地図上に表示される物件の位置は付近住所に所在することを表すものであり、実際の物件所在地とは異なる場合がございます。









