草津市南草津プリムタウン2丁目の店舗事務所 2階
JR南草津駅より徒歩18分、2階部分・約13坪。業種業態はご相談ください。
- 賃料/坪単価
- 14万3,000円 /
1.1万円
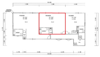
- 坪数/面積
- 13.02坪 /
43.07㎡
- 所在階
- 2階
- 管理費・共益費
- -
- 保証金
- 6ヶ月
- 礼金
- 0ヶ月
ポイント・特徴
物件概要
【店舗事務所】 物件番号:98895121 情報更新日:2026年03月10日 次回更新予定日:2026年03月24日| 所在地 | 滋賀県草津市南草津プリムタウン2丁目 | ||
|---|---|---|---|
| 交通 | |||
| 坪数(面積) | 13.02坪(43.07㎡) | ||
| 賃料/坪単価 | 14.3万円/1.1万円 | 管理費・共益費 | - |
| 敷金/礼金/保証金 | -/0ヶ月/6ヶ月 | 償却/敷引 | -/- |
| 更新料 | - | 権利金/雑費 | -/- |
| 造作譲渡金 | - | 駐車場/月額料金 | 空有/5,500円 (税込) |
| 保険加入/料金 | 有/- | 保険名/保険期間 | -/- |
| 保証人代行義務 | 必加入 | 保証会社 | - |
| 保証会社詳細 | - | 向き | - |
| 築年月(築年数) | 2026年 6月 (予定) | 契約期間 | - |
| 種別/構造 | 店舗事務所/鉄骨造 | 用途地域 | 第一種住居 |
| 部屋/所在階/階建 | -/2階/2階建 | 総戸数 | - |
| 現況/引渡時期 | 未完成/2026年07月上旬予定 | 取引態様 | 仲介 |
| 物件番号 | 98895121 | 取引条件の有効期限 | 2026年03月24日 |
| 設備条件 |
|
||
| 備考 |
保証金返還率:3年未満0%、6年未満60%、9年未満60%、9年以上90% 諸条件は未定の部分もあり、随時決定させていただきます。 ※表示金額:全て税込 ※仲介手数料:賃料1ヶ月分 |
||
| 条件(その他) | ゴミ回収代:5,720円(月額) 看板代:1,100円(月額) | ||
| 取扱会社 |
|
||
※地図上に表示される物件の位置は付近住所に所在することを表すものであり、実際の物件所在地とは異なる場合がございます。









