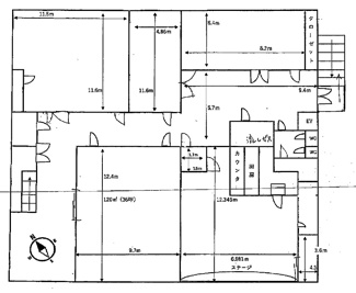
草津市上笠2丁目の事務所 2階
草津市上笠 2階部分・約200坪。分割相続可、倉庫として利用も可能です。
- 賃料/坪単価
- 88万円 /
0.43万円
- 坪数/面積
- 203.69坪 /
673.38㎡
- 所在階
- 2階
- 管理費・共益費
- 11,000円
- 保証金
- 6ヶ月
- 礼金
- 0ヶ月
ポイント・特徴
物件概要
【事務所】 物件番号:75469548 情報更新日:2026年05月12日 次回更新予定日:2026年05月26日| 所在地 | 滋賀県草津市上笠2丁目 | ||
|---|---|---|---|
| 交通 | |||
| 賃料/坪単価 | 88万円/0.43万円 | 坪数(面積) | 203.69坪(673.38㎡) |
| 管理費・共益費 | 11,000円 | 敷金/礼金/保証金 | 0ヶ月/0ヶ月/6ヶ月 |
| 償却/敷引 | -/- | 更新料 | - |
| 権利金/雑費 | -/- | ||
| 造作譲渡金 | - | 駐車場/月額料金 | 空有/- |
| 保険加入/料金 | 有/- | 保険名/保険期間 | -/- |
| 保証人代行義務 | - | 保証会社 | - |
| 保証会社詳細 | - | 向き | - |
| 築年月(築年数) | 1995年 5月 (築31年) | 契約期間 | 2年 |
| 種別/構造 | 事務所/鉄骨造 | 部屋/所在階/階建 | -/2階/2階建 |
| 総戸数 | - | 現況/引渡時期 | 空家/相談 |
| 取引態様 | 仲介 | 用途地域 | 近隣商業/第一種中高層住居専用 |
| 物件番号 | 75469548 | 取引条件の有効期限 | 2026年05月26日 |
| 設備条件 |
|
||
| 備考 | ※表示金額:全て税込 | ||
| 取扱会社 |
|
||
※地図上に表示される物件の位置は付近住所に所在することを表すものであり、実際の物件所在地とは異なる場合がございます。









