草津市野路1丁目の店舗一部 3階
JR南草津駅と直結の商業施設。3階部分・約76坪。飲食店の募集です。
- 賃料/坪単価
- 127万170円 /
1.65万円
- 坪数/面積
- 76.97坪 /
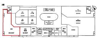
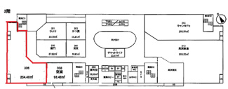
254.48㎡
- 所在階
- 3階
- 管理費・共益費
- -
- 敷金
- 12ヶ月
- 礼金
- 0ヶ月
ポイント・特徴
物件概要
【店舗一部】 物件番号:72087136 情報更新日:2026年02月10日 次回更新予定日:2026年02月24日| 所在地 | 滋賀県草津市野路1丁目 | ||
|---|---|---|---|
| 交通 | |||
| 坪数(面積) | 76.97坪(254.48㎡) | ||
| 賃料/坪単価 | 127.017万円/1.65万円 | 管理費・共益費 | - |
| 敷金/礼金/保証金 | 12ヶ月/0ヶ月/- | 償却/敷引 | -/- |
| 更新料 | - | 権利金/雑費 | -/- |
| 造作譲渡金 | - | 駐車場/月額料金 | 空有/- |
| 保険加入/料金 | 有/- | 保険名/保険期間 | -/- |
| 保証人代行義務 | 必加入 | 保証会社 | - |
| 保証会社詳細 | - | 向き | - |
| 築年月(築年数) | 2002年 1月 (築24年) | 契約期間 | 定期借家 5年 |
| 種別/構造 | 店舗一部/鉄骨鉄筋コンクリート | 用途地域 | 商業 |
| 部屋/所在階/階建 | -/3階/6階建 地下1階 | 総戸数 | - |
| 現況/引渡時期 | 空家/相談 | 取引態様 | 一般媒介 |
| 物件番号 | 72087136 | 取引条件の有効期限 | 2026年02月24日 |
| 設備条件 |
|
||
| 備考 |
テナント会費:2000円(非課税) 販促費:250円×㎡(物販100%、飲食70%、サービス50%)+6000円(別途消費税) グリストラップ清掃:年間2回実費負担(指定業者) 駐車場サービス(2時間無料) 営業時間:11:00~相談 隣の空区画と合わせて106坪で借りることも可能(諸条件要相談) ※表示金額:全て税込 |
||
| 条件(その他) | 駐車場負担金:2万4,420円(月額) 生ゴミ処理費:9,900円(月額) 飲食ゾーン用内照式看板(館内4か所):1万1,000円(月額) | ||
| 取扱会社 |
|
||
※地図上に表示される物件の位置は付近住所に所在することを表すものであり、実際の物件所在地とは異なる場合がございます。









