草津市矢橋町の店舗事務所 1階
JR南草津駅より徒歩17分、湖南幹線に面す店舗事務所、1階部分・約13坪。来客用駐車場は賃料に含む。
- 賃料/坪単価
- 13万7,500円 /
1.03万円
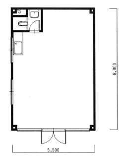
- 坪数/面積
- 13.30坪 /
44.00㎡
- 所在階
- 1階
- 管理費・共益費
- 5,000円
- 保証金
- 30万円
- 礼金
- 5万円
ポイント・特徴
物件概要
【店舗事務所】 物件番号:100531975 情報更新日:2026年03月10日 次回更新予定日:2026年03月24日| 所在地 | 滋賀県草津市矢橋町 | ||
|---|---|---|---|
| 交通 | |||
| 坪数(面積) | 13.30坪(44.00㎡) | ||
| 賃料/坪単価 | 13.75万円/1.03万円 | 管理費・共益費 | 5,000円 |
| 敷金/礼金/保証金 | 0ヶ月/5万円/30万円 | 償却/敷引 | -/- |
| 更新料 | - | 権利金/雑費 | -/- |
| 造作譲渡金 | - | 駐車場/月額料金 | 空有/0円 |
| 保険加入/料金 | 有/- | 保険名/保険期間 | -/- |
| 保証人代行義務 | 必加入 | 保証会社 | - |
| 保証会社詳細 | - | 向き | - |
| 築年月(築年数) | 1991年 2月 (築35年) | 契約期間 | 3年 |
| 種別/構造 | 店舗事務所/鉄骨造 | 用途地域 | 近隣商業 |
| 部屋/所在階/階建 | -/1階/2階建 | 総戸数 | - |
| 現況/引渡時期 | 賃貸中/相談 | 取引態様 | 仲介 |
| 物件番号 | 100531975 | 取引条件の有効期限 | 2026年03月24日 |
| 設備条件 |
|
||
| 備考 |
保証金返還率:3年未満60%、6年未満70%、9年未満80%、9年以上100% ハウスクリーニング費用(退去時):66,000円 ※表示金額:全て税込 ※仲介手数料:賃料1ヶ月分 |
||
| 取扱会社 |
|
||
※地図上に表示される物件の位置は付近住所に所在することを表すものであり、実際の物件所在地とは異なる場合がございます。









