大津市大萱1丁目の店舗事務所 4階
JR瀬田駅より徒歩3分、国道1号線沿いのテナントビル4階部分・約67坪。銀行やコンビニ、商業施設が近隣にあり便利な立地です。
- 賃料/坪単価
- 38万5,000円 /
0.57万円
- 坪数/面積
- 67.88坪 /
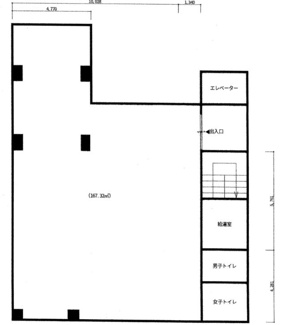
224.41㎡
- 所在階
- 4階
- 管理費・共益費
- 44,000円
- 保証金
- 6ヶ月
- 礼金
- 0ヶ月
ポイント・特徴
物件概要
【店舗事務所】 物件番号:98974860 情報更新日:2026年04月14日 次回更新予定日:2026年04月28日| 所在地 | 滋賀県大津市大萱1丁目 | ||
|---|---|---|---|
| 交通 | |||
| 坪数(面積) | 67.88坪(224.41㎡) | ||
| 賃料/坪単価 | 38.5万円/0.57万円 | 管理費・共益費 | 44,000円 |
| 敷金/礼金/保証金 | -/0ヶ月/6ヶ月 | 償却/敷引 | -/- |
| 更新料 | - | 権利金/雑費 | -/- |
| 造作譲渡金 | - | 駐車場/月額料金 | 空有(2台)/16,500円 (税込) |
| 保険加入/料金 | 有/- | 保険名/保険期間 | -/- |
| 保証人代行義務 | 必加入 | 保証会社 | 全保連 |
| 保証会社詳細 | - | 向き | - |
| 築年月(築年数) | - (-) | 契約期間 | 3年 |
| 種別/構造 | 店舗事務所/鉄筋コンクリート | 用途地域 | 商業 |
| 部屋/所在階/階建 | -/4階/4階建 | 総戸数 | - |
| 現況/引渡時期 | 空家/相談 | 取引態様 | 仲介 |
| 物件番号 | 98974860 | 取引条件の有効期限 | 2026年04月28日 |
| 設備条件 |
|
||
| 備考 |
保証金返還率:3年未満0%、6年未満50%、9年未満70%、9年以上80% 看板使用料:月額5500円 ※表示金額:全て税込 ※仲介手数料:賃料1ヶ月分 |
||
| 取扱会社 |
|
||
※地図上に表示される物件の位置は付近住所に所在することを表すものであり、実際の物件所在地とは異なる場合がございます。









