大津市大萱1丁目の店舗事務所 4階
JR瀬田駅より徒歩4分、4階部分・約12坪の店舗事務所。各種スクールや事務所等に適します。
- 賃料/坪単価
- 11万円 /
0.87万円
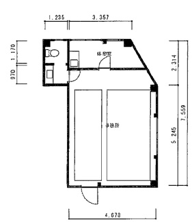
- 坪数/面積
- 12.16坪 /
40.20㎡
- 所在階
- 4階
- 管理費・共益費
- -
- 保証金
- 30万円
- 礼金
- 0ヶ月
ポイント・特徴
物件概要
【店舗事務所】 物件番号:88786489 情報更新日:2026年01月19日 次回更新予定日:2026年02月02日| 所在地 | 滋賀県大津市大萱1丁目 | ||
|---|---|---|---|
| 交通 | |||
| 坪数(面積) | 12.16坪(40.20㎡) | ||
| 賃料/坪単価 | 11万円/0.87万円 | 管理費・共益費 | - |
| 敷金/礼金/保証金 | 0ヶ月/0ヶ月/30万円 | 償却/敷引 | -/- |
| 更新料 | 0ヶ月 | 権利金/雑費 | -/- |
| 造作譲渡金 | - | 駐車場/月額料金 | 無/- |
| 保険加入/料金 | 有/- | 保険名/保険期間 | -/- |
| 保証人代行義務 | 必加入 | 保証会社 | - |
| 保証会社詳細 | - | 向き | - |
| 築年月(築年数) | 1988年 10月 (築37年) | 契約期間 | 3年 |
| 種別/構造 | 店舗事務所/鉄骨造 | 用途地域 | 商業 |
| 部屋/所在階/階建 | -/4階/4階建 | 総戸数 | - |
| 現況/引渡時期 | 空家/相談 | 取引態様 | 仲介 |
| 物件番号 | 88786489 | 取引条件の有効期限 | 2026年02月02日 |
| 設備条件 |
|
||
| 備考 |
保証金返還率:3年未満30%、6年未満60%、6年以上90% 設備:設備保証なし ※飲食、ナイト系は不可 既存カウンター等撤去予定 ※表示金額:全て税込 ※仲介手数料:賃料1ヶ月分 |
||
| 条件(その他) | 更新事務手数料:1万1,000円 鍵交換費用:1万6,500円 | ||
| 取扱会社 |
|
||
※地図上に表示される物件の位置は付近住所に所在することを表すものであり、実際の物件所在地とは異なる場合がございます。









