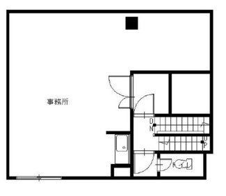
大津市末広町の店舗事務所 2階
JR大津駅より徒歩3分。2階部分・約13坪 事務所に適します。
- 賃料/坪単価
- 11万円 /
0.81万円
- 坪数/面積
- 13.61坪 /
45.00㎡
- 所在階
- 2階
- 管理費・共益費
- -
- 保証金
- 30万円
- 礼金
- 11万円
ポイント・特徴
物件概要
【店舗事務所】 物件番号:59768843 情報更新日:2026年01月27日 次回更新予定日:2026年02月10日| 所在地 | 滋賀県大津市末広町 | ||
|---|---|---|---|
| 交通 | |||
| 坪数(面積) | 13.61坪(45.00㎡) | ||
| 賃料/坪単価 | 11万円/0.81万円 | 管理費・共益費 | - |
| 敷金/礼金/保証金 | 0ヶ月/11万円/30万円 | 償却/敷引 | -/- |
| 更新料 | 1ヶ月(新賃料) | 権利金/雑費 | -/- |
| 造作譲渡金 | - | 駐車場/月額料金 | 無/- |
| 保険加入/料金 | 有/- | 保険名/保険期間 | -/- |
| 保証人代行義務 | 必加入 | 保証会社 | - |
| 保証会社詳細 | - | 向き | - |
| 築年月(築年数) | 1971年 4月 (築54年) | 契約期間 | 3年 |
| 種別/構造 | 店舗事務所/鉄骨造 | 用途地域 | 商業 |
| 部屋/所在階/階建 | -/2階/6階建 地下1階 | 総戸数 | - |
| 現況/引渡時期 | 空家/相談 | 取引態様 | 仲介 |
| 物件番号 | 59768843 | 取引条件の有効期限 | 2026年02月10日 |
| 設備条件 |
|
||
| 備考 |
保証金解約引き別途定めあり(事務所のみの場合は保証金相談可) ※表示価格:全て税込 |
||
| 取扱会社 |
|
||
※地図上に表示される物件の位置は付近住所に所在することを表すものであり、実際の物件所在地とは異なる場合がございます。









